Leave a Message

Thank you for your message. We will be in touch with you shortly.

New Affordable Housing Plans Bring More Options to West Placer County

November 25, 2025

New Affordable Housing Plans Bring More Options to West Placer County

Recently, the Placer County Board of Supervisors approved two new housing agreements that are meant to add more options in West Placer County.

These agreements focus on increasing choices for extremely low, very low, low, and moderate income households. The goal is to create a wider range of housing types that fit different needs across the community.

168 Unit Placer Creek Affordable Apartments

One agreement supports the Placer Creek Affordable Apartments project near Baseline Road and Westbrook Boulevard in the Placer Vineyards area.

 
https://www.nar.realtor/_next/image?dpl=dpl_2JsgyARZHQhToVtyCYxGuKwPvZ2b&q=75&url=https%3A%2F%2Fcms.nar.realtor%2F%2Fsites%2Fdefault%2Ffiles%2F2303_hd_multifamilyaffordable_ktgy_main.png%3Fitok%3DVIxYU-qR&w=3840

Key details:

  • 168 total units

  • 167 units will have income restrictions

  • 1 unit will be used for an on site manager

  • Income levels served include extremely low, very low, and low income

  • The agreement includes a 55 year affordability period

  • The plan outlines rules for rent limits, tenant qualifications, marketing, construction, and long term compliance

According to Placer County Housing Manager Nikki Streegan, the project is designed to support long range county housing goals and provide more options for local residents.

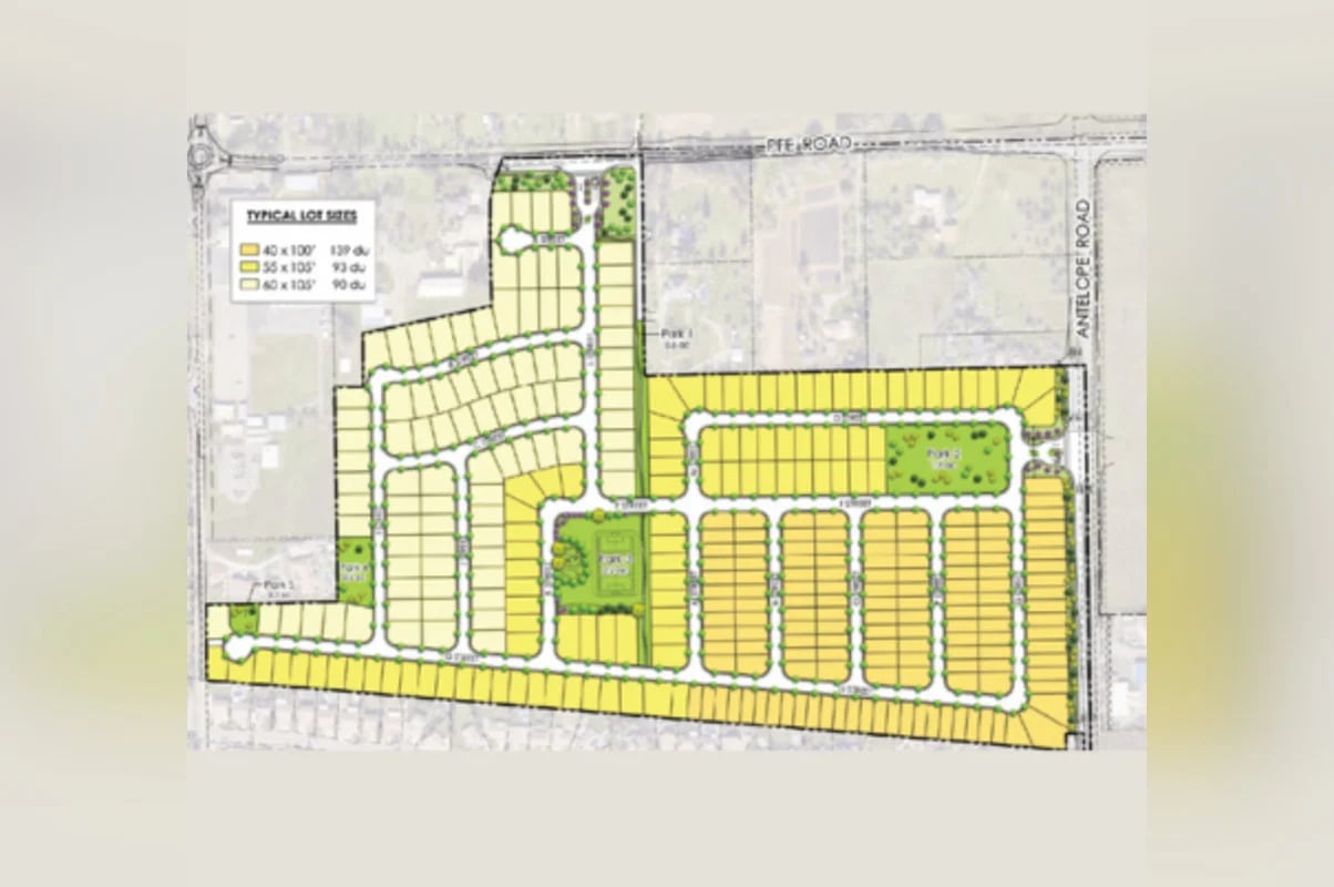
322 Lot Mill Creek Subdivision with ADUs

The second agreement is for the Mill Creek Subdivision in the Dry Creek West Placer community.

https://ww2.kqed.org/app/uploads/sites/10/2021/02/RS41396_003_KQED_Housing_MountainView_02192020_3309-qut-1832x1280.jpg
https://www.hcd.ca.gov/sites/default/files/images/adu-picture.webp

This project includes:

  • 322 single family lots

  • 33 accessory dwelling units

  • 32 ADUs under 750 square feet, categorized as “affordable by design”

  • 1 ADU with a deed restriction for very low income households

Per the agreement, these ADUs:

  • Cannot be used for short term rentals

  • Cannot be sold separately from the primary home

  • Must follow all state and county requirements for size and affordability

Streegan noted that ADUs can offer flexible living spaces for many types of households, including multigenerational families.

Why These Agreements Matter

These approvals are part of Placer County’s ongoing efforts to plan for housing across many income levels. While the projects differ in size and structure, both introduce long term housing options into West Placer communities.

Points to consider:

  • The agreements outline how affordability will be managed

  • They add a mix of rentals and small additional units

  • They follow county and state housing policies

  • They contribute to long term planning in growing areas of the county

How these projects will shape the local housing market may depend on future demand, construction timelines, and broader economic conditions.

 

Housing needs continue to change as communities grow. These two agreements represent planned steps by the county to increase available options for a range of income levels in West Placer County. As construction moves forward, more information will become available on timelines, openings, and how each project fits into the larger development picture.

Work With Us

Whether you're moving in 9 days or 9 months, contact us so we can help you make a smooth move to Roseville, CA.